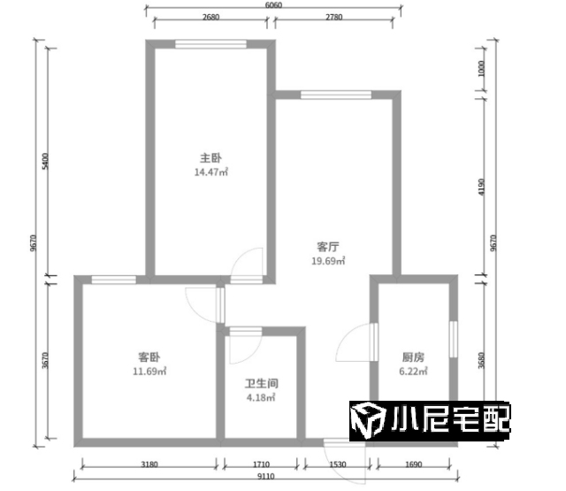
案例介紹
北京市 - 懷柔區(qū)
勝悅居
戶型圖